一、餐饮/饭店污水处理设备功能介绍:
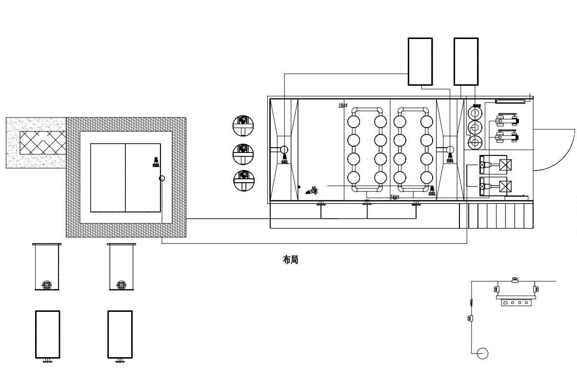
1.絮凝管道与絮凝器
乐中环保Leptech?饭店污水处理设备以其精心设计的絮凝管道和絮凝器为开端,为污水处理过程注入了高效的凝聚力。通过这一巧妙的构造,污水中的微小悬浮物能够在此聚合并逐步沉淀,为后续处理步骤打下坚实的基础。
2.管道支座与设备外壳
设备的稳定运行离不开坚固的支撑,而我们在管道支座和设备外壳的设计上下足了功夫。支座稳固可靠,外壳坚韧耐用,为设备长期运行提供了可靠保障。
3.絮凝系统与外置加强结构
乐中环保Leptech?饭店污水处理设备的絮凝系统细致入微,为污水中的杂质提供了精准有效的捕捉和聚集,确保达到更好的处理效果。外置加强结构不仅加强了整体稳定性,还优化了处理过程,让污水净化更加高效。
4.工艺接口与功能隔板
设备的工艺接口精心设计,使得不同处理单元之间的协作更加紧密顺畅。功能隔板则在优化处理流程的同时,最大限度地提高了污水净化效率,确保水质达标。
5.潜水推进器与微孔曝气器
乐中环保Leptech?饭店污水处理设备中的潜水推进器和微孔曝气器如同设备的“心脏”和“肺部”,为生物处理提供强有力的动力和充足的氧气。这一组合使得污水中的有机物得以迅速降解,达到了非常好的净化效果。
6.集泥装置与设备间
设备的集泥装置和设备间布局合理,使得污泥的回流和收集更加便捷高效。循环利用污泥进一步提高了处理效率,减少了资源浪费。
7.溢流系统与挂膜载体支撑系统
溢流系统的巧妙设计保障了设备的安全运行,防止过载和泄漏。
8.挂膜载体
乐中环保Leptech?饭店污水处理设备引入挂膜载体技术,进一步扩大了处理面积,使得微生物得以更大范围地附着生长,为污水净化带来了新的可能性。

